EPFL (Ecole Polytechnique Federation Lausanne)
Advanced Sciences Building
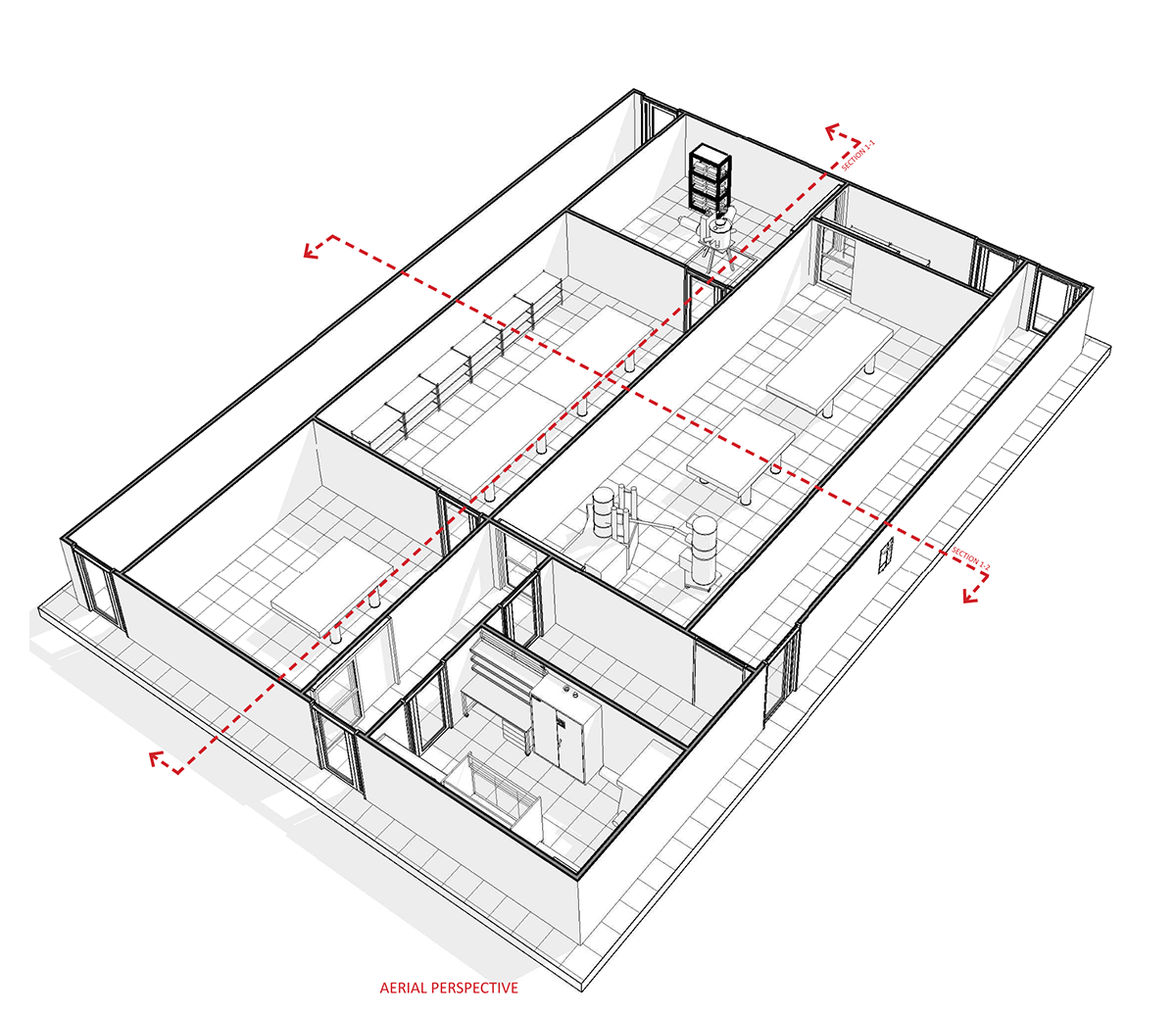
LAB/LSA was engaged by EPFL to provide a detailed planning, programming and conceptual design study for a new research building to be a center of Advanced Sciences and Shared Scientific Platforms that required highly stable laboratories. Involving workshops with over 15 PI Groups, the study included a conceptual building design that was used to establish the project budget. Situated in Lausanne Switzerland, the project overlooks Lake Geneva and the Alps. LAB LSA serves as Peer Review consultant to EPFL during the design phases.




